Residential Landscape Design Services
I would love to work with you to transform your outdoor spaces into a place where you, your family, and friends can relax and have fun in!
What is the process in this transformation?
First, we will meet at your home to discuss thoroughly what your landscaping needs are. I will have a portfolio where you may see my past projects and my capabilities.
- Next, I will provide you with a quote of what the cost of my landscape design service will be.
- If you choose to move forward, then you return a signed copy of the quote/contract, secured with a deposit which is typically 20% of the quoted fee. During this meeting we would discuss in detail what your landscape design should include. This is a good time to show me any pictures you’ve collected – got’a love Houzz and Pinterest!
- I come back to you with a conceptual design. You may like it exactly the way it is or together we can tweak it, ultimately coming up with one you are completely in love with!
- With this I create a Landscape Design Portfolio for you.
What is a Landscape Design Portfolio?
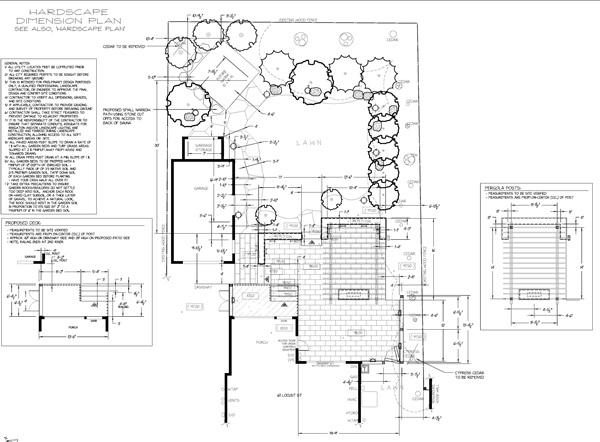
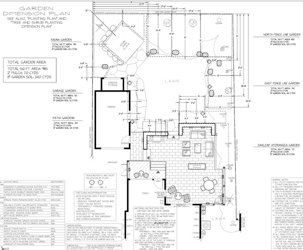
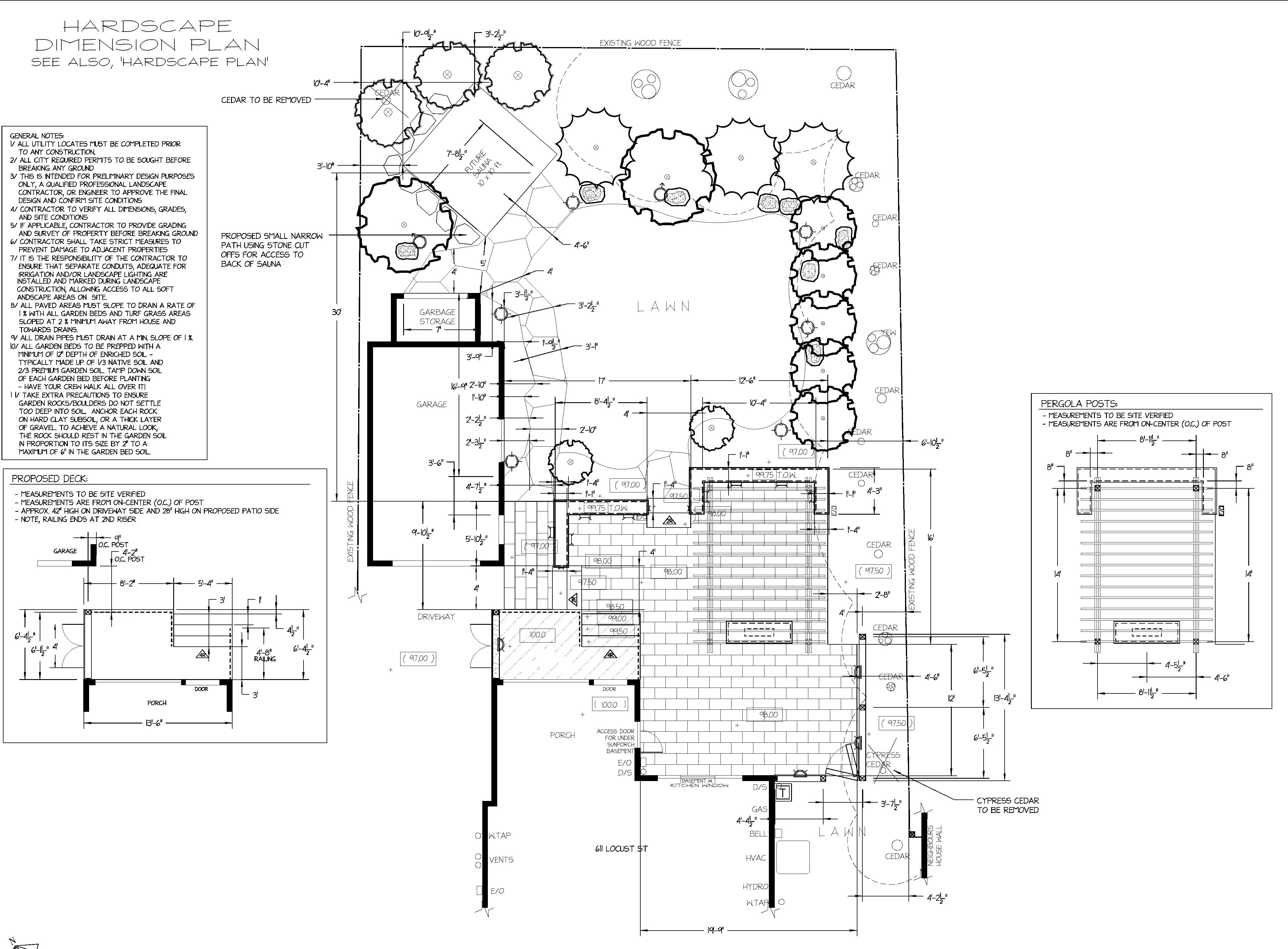
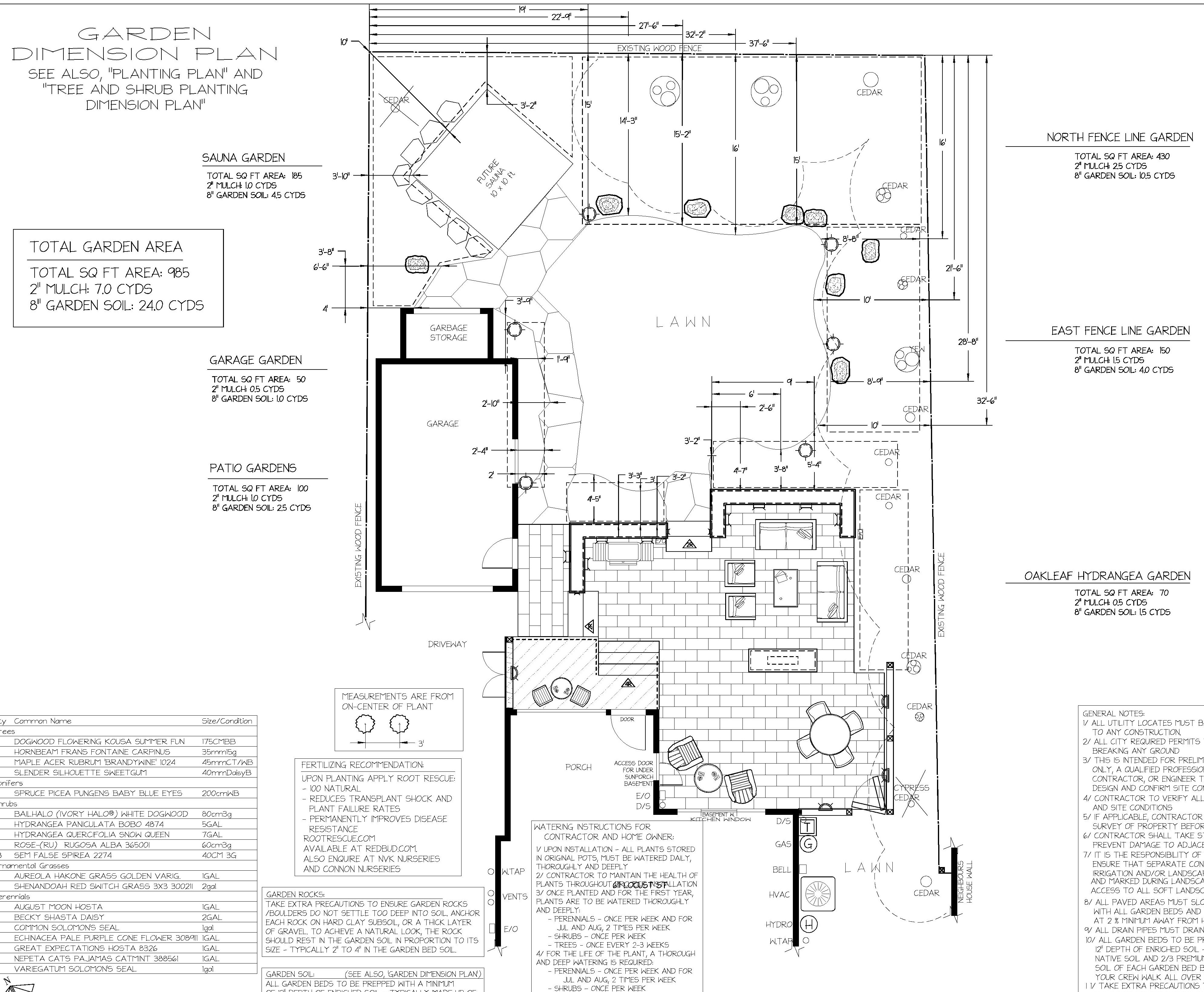
Your Landscape Design Portfolio provides all the drawings, information and general construction notes needed to build your landscaping project.
- Drawings are drawn to scale using professional landscaping software.
- Your portfolio will be provided in both a hard copy and digital pdf format.
- Based on the complexity of your project, your Landscape Design Portfolio may include:
What is the cost of my service?
My minimum fee is $1000 – this would be for a small front yard or back yard.
- The fee is increased based on the size of the yard and how many design elements are to be included in the design.
- Please complete a ‘Request for Quote’ to obtain a more accurate price.
- Upon signing of the quote/contract, typically a deposit of 20% of the quoted price is required. A second payment of 40% is due upon presentation of the first Concept Drawing, and the third and final payment of 40% is due upon presentation of the Master Plan and Landscape Design Portfolio.
Who will build your Landscape Project?
If you are a DIY’er... My Landscape Design Portfolio will give you all the drawings, information and general construction notes you will need to build my design. I would also be available to supervise.
- If you have your own Contractor in mind, you would simply forward all the plans in .pdf digital format to your Contractor. I would also be available to supervise.
- Your Landscape Design Portfolio will be provided in pdf digital format which will allow you to pursue 3 quotes from local contractors - this is a great way to get apples-to-apples quotes! You would simply send the pdf versions of the Plans on-line through to each of the contractors.
